"掃一掃,加我微信"
升降機,升降平臺是華雄企業的主打產品,歡迎訪問我司官網,選購您所需要的升降機械!
多年升降機制作經驗
專業的升降機·升降平臺制作銷售商
免費咨詢熱線:
188-8835-2017
聯系方式
山東華雄機械有限公司

免費咨詢熱線:400-000-8651
座機:0531-84381233
手機:18888-35-2017
傳真:0531-84281997
郵箱:jinanchenmo@foxmail.com 
網址:www.pzjahm.com
地址: 山東省濟南市濟陽縣濟陽街道經二路大鄺居394號
開戶行:中國銀行濟陽開元大街支行
賬  號:223430233459
您所在的位置:首頁 > 新聞動態 > 行業動態 >

登車橋案例圖、常規尺寸及定制圖紙

2021-10-12 16:07:00   來源:山東華雄機械有限公司    點擊:
       登車橋是一種可以根據貨車車廂的不同高度進行自由調節以達到與車廂平穩相連的裝卸貨設備,起升后的登車橋帶有一定的坡度,可以更方便叉車進入貨車。
       登車橋有兩種類型,移動式和固定式兩種,不同類型的登車橋標準尺寸也不相同。固定式登車橋的安裝需要月臺,移動式的則不需要,可以通過輪胎到處移動,無需外接電源。
       一、登車橋案例圖
       \
       \
       二、登車橋常規尺寸
       固定式登車橋規格:
       額定載重:6T,8T,10T,12T;
       臺面尺寸:2440x1830mm;
       翻轉舌板尺寸:400mm;
       行程:+400—— -300mm;
       電機功率:0.75KW;
       地坑尺寸(LxWxH):2600x1860x510mm;
       移動登車橋規格:
       額定載重:6T,8T,10T;
       其余尺寸請聯系我公司銷售人員。
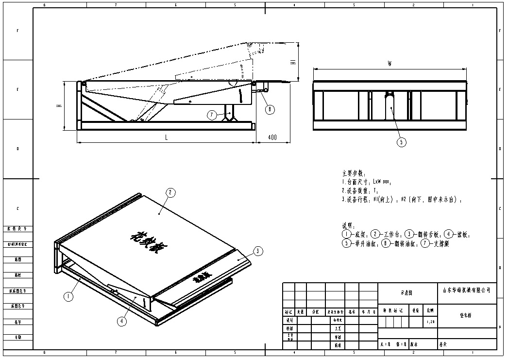
       三、登車橋定制圖紙
       隨著近些年客戶對登車橋的個性化需求,也令許多企業有了一項特殊的供應,就是非標定制。我公司在銷售常規款登車橋的同時,也可根據不同客戶對不同規格和顏色的登車橋需求進行定做。具體參數如下:
       \
http://www.pzjahm.com/

?